PORTES PROFILES CHAUDS

IMPERIAL 800, SUPERIAL 800, SUPERIAL AME PLEINE, GENESIS 75, GENESIS 75 AME PLEINE, STAR, STAR AME PLEINE

Les profilés de portes chaudes ont trois chambres dont la centrale délimitée par les barrettes isolantes en polyamide. En version « i+ », on incorpore dans les profilés les inserts en mousse haute densité pour abaisser le coefficient de conductivité thermique celui-ci étant influencé encore plus par le type, la qualité, l’épaisseur du remplissage. Pour les portes d’entrée, le plus souvent ce sont les panneaux décoratifs disponibles en innombrables modèles avec différents dessins et coloris. Les ornements variés sont aussi possibles pour les portes à vantail âme pleine.

Les portes d’entrés sont fournies en standard avec trois paumelles réglables en applique, serrure trois points, double poignée. Pour chacun des éléments d’équipements il y a des variantes en option comme serrure cinq points, paumelles cachées etc.

 

IMPERIAL 800, porte chaude de base

 

La porte IMPERIAL 800 aux bons paramètres techniques et performances est d’un très bon rapport qualité/prix. 

MENUISERIES
ALUMINIUM

FENÊTRES
GAMME FROIDE

ECONOLINE

FENÊTRES
GAMME CHAUDE

IMPERIAL

SUPERIAL

GENESIS 75

STAR

PORTES D'ENTREE
GAMME FROIDE

ECONOLINE PORTE

PORTES D'ENTREE
GAMME CHAUDE

IMPERIAL 800 PORTE

SUPERIAL 800 PORTE

SUPERIAL 800
PORTE AME PLEINE

GENESIS 75 PORTE

GENESIS 75
PORTE AME PLEINE

STAR PORTE

STAR
PORTE AME PLEINE

COULISSANTS
GAMME FROIDE

ECOSLIDE

SLIDE COLD

COULISSANTS
GAMME CHAUDE

VISOGLIDE PLUS

ULTRAGLIDE

ULTRAGLIDE D'ANGLE

ULTRAGLIDE SEUIL BAS

MODERN SLIDE

CARACTERISTIQUES PRINCIPALES

Profondeur  65 mm dormant, 74 mm ouvrant, trois chambres
Possibilité de forme cintrée
Parecloses carrées, en option arrondies
Paumelles en applique, en feuillure ou cachées
Seuil bas 20 mm
Intégrabilité dans les constructions vitrées ALIPLAST
Remplissage épaisseur jusqu’à 51 mm
* vitrage double 4/16Ar/4 ou autre, triple 4/16Ar/4/16Ar/4 ou autre, intercalaire aluminium,
   en option
      – propriétés spécifiques : isolation thermique accrue, isolation  phonique accrue, verre
         sécurit, anti-effraction, contrôle solaire
      – divers aspects décoratifs : delta, chinchilla, dépoli etc.
      – petits bois intégrés ou collés sur une ou deux faces
      – intercalaire warm edge (coefficient Psi meilleur d’au moins 0.1 W/(m2.K)
* panneau plein simple double paroi, en mousse de polystyrène extrudé isolante,
   revêtement feuille aluminium sur les deux faces  
* mixte vitrage/panneau plein simple
* panneau décoratif avec les finitions très travaillées, alliant différentes matières comme
  verre, plastique, métal
Coloris
* large choix dans la palette RAL dont en standard RAL 9016 blanc, RAL 9006 aluminium
   blanc, RAL 8019 marron, obtenus par thermolaquage en mat, satiné, structure sable
   métallisée ou non métallisée
* teintes veinage bois résultant d’un thermolaquage spécifique
* couleur aluminium naturel issue du procédé d’anodisation

MENUISERIES PVC

MENUISERIES BOIS

VOLETS ROULANTS

PORTES DE GARAGE

PLUS D’INFORMATION ?
DEMANDE DE DEVIS ?

CLIQUER ICI

 

IMPERIAL 800 PORTE

IMPERIAL 800 PORTE i+

SUPERIAL 800 porte, qualité supérieure

Les portes SUPERIAL 800 c’est la gamme supérieure de menuiseries ALIPLAST dont les profilés sont plus profonds, plus solides et ont de meilleures performances.

MENUISERIES
ALUMINIUM

FENÊTRES
GAMME FROIDE

ECONOLINE

FENÊTRES
GAMME CHAUDE

IMPERIAL

SUPERIAL

GENESIS 75

STAR

PORTES D'ENTREE
GAMME FROIDE

ECONOLINE PORTE

PORTES D'ENTREE
GAMME CHAUDE

IMPERIAL 800 PORTE

SUPERIAL 800 PORTE

SUPERIAL 800
PORTE AME PLEINE

GENESIS 75 PORTE

GENESIS 75
PORTE AME PLEINE

STAR PORTE

STAR
PORTE AME PLEINE

COULISSANTS
GAMME FROIDE

ECOSLIDE

SLIDE COLD

COULISSANTS
GAMME CHAUDE

VISOGLIDE PLUS

ULTRAGLIDE

ULTRAGLIDE D'ANGLE

ULTRAGLIDE SEUIL BAS

MODERN SLIDE

CARACTERISTIQUES PRINCIPALES

Profondeur  75 mm dormant, 75 mm ouvrant, trois chambres
Possibilité de forme cintrée
Parecloses carrées, en option arrondies
Paumelles en applique, en feuillure ou cachées
Seuil bas 20 mm
Intégrabilité dans les constructions vitrées ALIPLAST
Remplissage épaisseur jusqu’à 61 mm
* vitrage double 4/16Ar/4 ou autre, triple 4/16Ar/4/16Ar/4 ou autre, intercalaire aluminium,
   en option
      – propriétés spécifiques : isolation thermique accrue, isolation  phonique accrue, verre
         sécurit, anti-effraction, contrôle solaire
      – divers aspects décoratifs : delta, chinchilla, dépoli etc.
      – petits bois intégrés ou collés sur une ou deux faces
      – intercalaire warm edge (coefficient Psi meilleur d’au moins 0.1 W/(m2.K)
* panneau plein simple double paroi, en mousse de polystyrène extrudé isolante,
   revêtement feuille aluminium sur les deux faces  
* mixte vitrage/panneau plein simple
* panneau décoratif avec les finitions très travaillées, alliant différentes matières comme
  verre, plastique, métal
Coloris
    * large choix dans la palette RAL dont en standard RAL 9016 blanc, RAL 9006 aluminium
      blanc, RAL 8019 marron, obtenus par thermolaquage en mat, satiné, structure sable
      métallisée ou non métallisée
   * teintes veinage bois résultant d’un thermolaquage spécifique
   * couleur aluminium naturel issue du procédé d’anodisation

SUPERIAL 800 PORTE

SUPERIAL 800 PORTE i+

SUPERIAL PORTE AME PLEINE, isolation thermique supérieure

La porte SUPERIAL SP800 i+ avec vantail à panneau âme pleine dont le revêtement en aluminium recouvre l’ouvrant de haut en bas, est disponible en version une face ou bi-face. Son coefficient de conductivité thermique, en particulier pour les portes bi-face, est nettement supérieur à celui des portes classiques.

 

MENUISERIES
ALUMINIUM

FENÊTRES
GAMME FROIDE

ECONOLINE

FENÊTRES
GAMME CHAUDE

IMPERIAL

SUPERIAL

GENESIS 75

STAR

PORTES D'ENTREE
GAMME FROIDE

ECONOLINE PORTE

PORTES D'ENTREE
GAMME CHAUDE

IMPERIAL 800 PORTE

SUPERIAL 800 PORTE

SUPERIAL 800
PORTE AME PLEINE

GENESIS 75 PORTE

GENESIS 75
PORTE AME PLEINE

STAR PORTE

STAR
PORTE AME PLEINE

COULISSANTS
GAMME FROIDE

ECOSLIDE

SLIDE COLD

COULISSANTS
GAMME CHAUDE

VISOGLIDE PLUS

ULTRAGLIDE

ULTRAGLIDE D'ANGLE

ULTRAGLIDE SEUIL BAS

MODERN SLIDE

CARACTERISTIQUES PRINCIPALES

76 mm dormant, 76 mm ouvrant
Parecloses carrées si panneau âme pleine une face
Paumelles en applique, en feuillure ou cachées
Seuil bas 20 mm
Intégrabilité dans les constructions vitrées ALIPLAST
Remplissage en polystyrène extrudé XPS
  * panneau bi-face de la même épaisseur que le cadre de vantail
  * panneau une face: face extérieure s’alignant sur le cadre de vantail, face intérieure
    panneau insert
    pour les deux types de remplissage:
    – finition simple, revêtement peinture en de très nombreux coloris
    – finition décorative, très élaborée, faisant appel aux différentes techniques, alliant
      diverses matières comme verre, plastique, métal
Coloris
    * large choix dans la palette RAL dont en standard RAL 9016 blanc, RAL 9006 aluminium
      blanc, RAL 8019 marron, obtenus par thermolaquage en mat, satiné, structure sable
      métallisée ou non métallisée
   * teintes veinage bois résultant d’un thermolaquage spécifique
   * couleur aluminium naturel issue du procédé d’anodisation

SUPERIAL 800 PORTE AME PLEINE

GENESIS 75 PORTE, le haut de gamme

Les portes GENESIS 75 c’est la catégorie au dessus. Grâce à leur construction, leur épaisseur, leur robustesse, les portes GENESIS 75 atteignent  de très bonnes performances techniques et thermiques.

MENUISERIES
ALUMINIUM

FENÊTRES
GAMME FROIDE

ECONOLINE

FENÊTRES
GAMME CHAUDE

IMPERIAL

SUPERIAL

GENESIS 75

STAR

PORTES D'ENTREE
GAMME FROIDE

ECONOLINE PORTE

PORTES D'ENTREE
GAMME CHAUDE

IMPERIAL 800 PORTE

SUPERIAL 800 PORTE

SUPERIAL 800
PORTE AME PLEINE

GENESIS 75 PORTE

GENESIS 75
PORTE AME PLEINE

STAR PORTE

STAR
PORTE AME PLEINE

COULISSANTS
GAMME FROIDE

ECOSLIDE

SLIDE COLD

COULISSANTS
GAMME CHAUDE

VISOGLIDE PLUS

ULTRAGLIDE

ULTRAGLIDE D'ANGLE

ULTRAGLIDE SEUIL BAS

MODERN SLIDE

CARACTERISTIQUES PRINCIPALES

Profondeur  75 mm dormant, 75 mm ouvrant, trois chambres
Possibilité de forme cintrée
Parecloses carrées, en option arrondies
Paumelles en applique, en feuillure ou cachées
Seuil bas 20 mm
Intégrabilité dans les constructions vitrées ALIPLAST
Remplissage épaisseur jusqu’à 59 mm
* vitrage double 4/16Ar/4 ou autre, triple 4/16Ar/4/16Ar/4 ou autre, intercalaire aluminium,
   en option
        – propriétés spécifiques : isolation thermique accrue, isolation  phonique accrue, verre
           sécurit, anti-effraction, contrôle solaire
        – divers aspects décoratifs : delta, chinchilla, dépoli etc.
        – petits bois intégrés ou collés sur une ou deux faces
        – intercalaire warm edge (coefficient Psi meilleur d’au moins 0.1 W/(m2.K)
* panneau plein simple double paroi, en mousse de polystyrène extrudé isolante,
   revêtement feuille aluminium sur les deux faces  
* mixte vitrage/panneau plein simple
* panneau décoratif avec les finitions très travaillées, alliant différentes matières comme
  verre, plastique, métal
Coloris
    * large choix dans la palette RAL dont en standard RAL 9016 blanc, RAL 9006 aluminium
      blanc, RAL 8019 marron, obtenus par thermolaquage en mat, satiné, structure sable
      métallisée ou non métallisée
   * teintes veinage bois résultant d’un thermolaquage spécifique
   * couleur aluminium naturel issue du procédé d’anodisation

GENESIS 75 PORTE

GENESIS 75
PORTE i+

GENESIS 75 porte âme pleine, plus d'isolation

La porte GENESIS 75 à vantail panneau âme pleine avec le revêtement en aluminium recouvrant l’ouvrant de haut en bas est disponible en version une face ou bi-face. Son coefficient Uw en comparaison à celui des portes standard est nettement supérieur, en particulier pour les portes âme pleine bi-face.

MENUISERIES
ALUMINIUM

FENÊTRES
GAMME FROIDE

ECONOLINE

FENÊTRES
GAMME CHAUDE

IMPERIAL

SUPERIAL

GENESIS 75

STAR

PORTES D'ENTREE
GAMME FROIDE

ECONOLINE PORTE

PORTES D'ENTREE
GAMME CHAUDE

IMPERIAL 800 PORTE

SUPERIAL 800 PORTE

SUPERIAL 800
PORTE AME PLEINE

GENESIS 75 PORTE

GENESIS 75
PORTE AME PLEINE

STAR PORTE

STAR
PORTE AME PLEINE

COULISSANTS
GAMME FROIDE

ECOSLIDE

SLIDE COLD

COULISSANTS
GAMME CHAUDE

VISOGLIDE PLUS

ULTRAGLIDE

ULTRAGLIDE D'ANGLE

ULTRAGLIDE SEUIL BAS

MODERN SLIDE

CARACTERISTIQUES PRINCIPALES

Profondeur  75 mm dormant, 75 mm ouvrant
Parecloses carrées si panneau âme pleine une face
Paumelles en applique, en feuillure ou cachées
Seuil bas 20 mm
Intégrabilité dans les constructions vitrées ALIPLAST
Remplissage
  * panneau âme pleine bi-face dont l’habillage externe et interne recouvre entièrement
    le vantail
  * panneau âme pleine une face, l’autre face ayant l’aspect de vantail classique avec
    remplissage panneau
Coloris
    * large choix dans la palette RAL dont en standard RAL 9016 blanc, RAL 9006 aluminium
      blanc, RAL 8019 marron, obtenus par thermolaquage en mat, satiné, structure sable
      métallisée ou non métallisée
   * teintes veinage bois résultant d’un thermolaquage spécifique
   * couleur aluminium naturel issue du procédé d’anodisationP

GENESIS 75 PORTE
AME PLEINE

STAR porte, la plus performante

La porte STAR est incontestablement la meilleure des portes aluminium ALIPLAST. dans sa catégorie. De par leur paramètres techniques et en particulier par très bons résultats en matière d’isolation thermique, les portes d’entrée STAR sont recommandées en premier lieu pour les maisons passives.

MENUISERIES
ALUMINIUM

FENÊTRES
GAMME FROIDE

ECONOLINE

FENÊTRES
GAMME CHAUDE

IMPERIAL

SUPERIAL

GENESIS 75

STAR

PORTES D'ENTREE
GAMME FROIDE

ECONOLINE PORTE

PORTES D'ENTREE
GAMME CHAUDE

IMPERIAL 800 PORTE

SUPERIAL 800 PORTE

SUPERIAL 800
PORTE AME PLEINE

GENESIS 75 PORTE

GENESIS 75
PORTE AME PLEINE

STAR PORTE

STAR
PORTE AME PLEINE

COULISSANTS
GAMME FROIDE

ECOSLIDE

SLIDE COLD

COULISSANTS
GAMME CHAUDE

VISOGLIDE PLUS

ULTRAGLIDE

ULTRAGLIDE D'ANGLE

ULTRAGLIDE SEUIL BAS

MODERN SLIDE

CARACTERISTIQUES PRINCIPALES

Profondeur  90 mm dormant, 99 mm ouvrant, trois chambres
Possibilité de forme cintrée
Parecloses carrées, en option arrondies
Paumelles en applique, en feuillure ou cachées
Seuil bas 20 mm
Intégrabilité dans les constructions vitrées ALIPLAST
Remplissage épaisseur jusqu’à 72 mm
* vitrage double 4/16Ar/4 ou autre, triple 4/16Ar/4/16Ar/4 ou autre, intercalaire aluminium
   en option
        – propriétés spécifiques : isolation thermique accrue, isolation  phonique accrue, verre
           sécurit, anti-effraction, contrôle solaire
        – divers aspects décoratifs : delta, chinchilla, dépoli etc.
        – petits bois intégrés ou collés sur une ou deux faces
        – intercalaire warm edge (coefficient Psi meilleur d’au moins 0.1 W/(m2.K)
 * panneau plein simple double paroi, en mousse de polystyrène extrudé isolante,
   revêtement feuille aluminium sur les deux faces  
* mixte vitrage/panneau plein simple
* panneau décoratif avec les finitions très travaillées, alliant différentes matières comme
  verre, plastique, métal
Coloris
    * large choix dans la palette RAL dont en standard RAL 9016 blanc, RAL 9006 aluminium
      blanc, RAL 8019 marron, obtenus par thermolaquage en mat, satiné, structure sable
      métallisée ou non métallisée
   * teintes veinage bois résultant d’un thermolaquage spécifique
   * couleur aluminium naturel issue du procédé d’anodisation

STAR PORTE

STAR PORTE i+

STAR porte âme pleine, l'excellence thermique

Avec la porte STAR vantail âme pleine, on arrive au niveau maximum de performances, tout particulièrement en matière de la conductivité thermique, le coefficient Uf pouvant descendre jusqu’à 0,73  W/m2K. Que ce soit la variante une face ou bi-face pour les panneaux, ces portes n’ont pas de pareil dans toute la gamme ALIPLAST.

MENUISERIES
ALUMINIUM

FENÊTRES
GAMME FROIDE

ECONOLINE

FENÊTRES
GAMME CHAUDE

IMPERIAL

SUPERIAL

GENESIS 75

STAR

PORTES D'ENTREE
GAMME FROIDE

ECONOLINE PORTE

PORTES D'ENTREE
GAMME CHAUDE

IMPERIAL 800 PORTE

SUPERIAL 800 PORTE

SUPERIAL 800
PORTE AME PLEINE

GENESIS 75 PORTE

GENESIS 75
PORTE AME PLEINE

STAR PORTE

STAR
PORTE AME PLEINE

COULISSANTS
GAMME FROIDE

ECOSLIDE

SLIDE COLD

COULISSANTS
GAMME CHAUDE

VISOGLIDE PLUS

ULTRAGLIDE

ULTRAGLIDE D'ANGLE

ULTRAGLIDE SEUIL BAS

MODERN SLIDE

CARACTERISTIQUES PRINCIPALES

Profondeur  90 mm dormant, 90 mm ouvrant
Parecloses carrées si panneau âme pleine une face
Paumelles en applique, en feuillure ou cachées
Seuil bas 20 mm
Intégrabilité dans les constructions vitrées ALIPLAST
Remplissage
  * panneau âme pleine bi-face dont l’habillage externe et interne recouvre entièrement
    le vantail
  * panneau âme pleine une face, l’autre face ayant l’aspect de vantail classique avec
    remplissage panneau
Coloris
    * large choix dans la palette RAL dont en standard RAL 9016 blanc, RAL 9006 aluminium
      blanc, RAL 8019 marron, obtenus par thermolaquage en mat, satiné, structure sable
      métallisée ou non métallisée
   * teintes veinage bois résultant d’un thermolaquage spécifique
   * couleur aluminium naturel issue du procédé d’anodisation

STAR PORTE
AME PLEINE

MENUISERIES ALUMINIUM
COULISSANTS FENETRES PORTES

Lorsque l’ouverture complète de fenêtres ou de portes-fenêtres est compliquée ou difficile par manque de place par exemple, ou quand il y a de grands gabarits de menuiseries à prévoir, la solution coulissant peut être une bonne option. 

Au lieu de pivoter à l’horizontale comme dans les fenêtres à frappe, les vantaux de la baie glissent l’un devant l’autre sur les rails, grâce aux chariots fixés et dissimulés sous les traverses basses, offrant ainsi un gain d’espace indéniable. 

Le verrouillage de la baie s’opère par l’actionnement de la poignée et, du côté opposé, par l’emboîtement des chicanes dont sont pourvues les montants centraux.

Deux principaux types de coulissants aluminium  se différencient par la manœuvre de fonctionnement. Pour ouvrir le vantail d’un coulissant classique, on tourne la poignée à 90 ° ce qui entraîne le déverrouillage de celui-là et  lui permet de glisser sur les rails. A contrario, pour ouvrir un coulissant dit levant-coulissant HST, on tourne la poignée à 180° du haut vers le bas ce qui fait soulever le vantail de quelques millimètres et relâcher la pression sur les joints – le vantail se débloque et peut aisément coulisser sur le rail.

 

 

Parmi plusieurs schémas d’ouverture de coulissants, le plus souvent en usage sont A, C, D, F.

 

SCHEMA A
mobile/fixe
ouverture complète à droite

SCHEMA C
fixe/mobile/mobile/fixe
ouverture complète milieu gauche et/ou milieu droit

SCHEMA D
mobile/mobile
ouverture complète à gauche ou à droite

SCHEMA F
mobile/mobile/mobile/mobile
ouverture complète un ou deux vantaux au choix

COULISSANTS PROFILES FROIDS

ECOSLIDE, SLIDE COLD

Les profilés des coulissants de la gamme froide ont une chambre, ils ne sont pas isolés. On en fabrique les fenêtres et les portes que l’on installe principalement à l’intérieur des habitations, et à l’extérieur lorsqu’il n’y a pas d’exigences de performances thermiques (vérandas, jardins d’hiver, magasins dans les galeries marchandes…)

ECOSLIDE coulissant fenêtre basique

Avec les profilés ECOSLIDE sans isolation thermique, en raison de leur paramètres techniques, en particulier de leur faible épaisseur, on fabrique surtout les fenêtres coulissantes à vitrage simple que l’on installe le plus souvent à l’intérieur des bâtiments, dans les cloisons de séparation ou autres structures vitrées ou non.

MENUISERIES
ALUMINIUM

FENÊTRES
GAMME FROIDE

ECONOLINE

FENÊTRES
GAMME CHAUDE

IMPERIAL

SUPERIAL

GENESIS 75

STAR

PORTES D'ENTREE
GAMME FROIDE

ECONOLINE PORTE

PORTES D'ENTREE
GAMME CHAUDE

IMPERIAL 800 PORTE

SUPERIAL 800 PORTE

SUPERIAL 800
PORTE AME PLEINE

GENESIS 75 PORTE

GENESIS 75
PORTE AME PLEINE

STAR PORTE

STAR
PORTE AME PLEINE

COULISSANTS
GAMME FROIDE

ECOSLIDE

SLIDE COLD

COULISSANTS
GAMME CHAUDE

VISOGLIDE PLUS

ULTRAGLIDE

ULTRAGLIDE D'ANGLE

ULTRAGLIDE SEUIL BAS

MODERN SLIDE

CARACTERISTIQUES PRINCIPALES

Profondeur dormant 54 – 106,5 mm
Deux, trois ou quatre rails
Deux, trois, quatre six ou huit vantaux mobiles ou fixes/mobiles
Profondeur vantail 18,5 – 21.5 mm
Poids vantail max 40 kg
Parecloses carrées, en option arrondies
Intégrabilité dans les constructions vitrées ALIPLAST
Remplissage
  * vitrage simple de 4 à 12 mm, intercalaire aluminium, en option
     – propriétés spécifiques : isolation thermique accrue, isolation  phonique
       accrue, verre sécurit, anti-effraction, contrôle solaire
     – divers aspects décoratifs : delta, chinchilla, dépoli etc. 
Coloris
  * large choix dans la palette RAL dont en standard RAL 9016 blanc, RAL 9006
    aluminium blanc, RAL 8019 marron, obtenus par thermolaquage en mat,
    satiné, structure sable métallisée ou non métallisée
   * teintes veinage bois résultant d’un thermolaquage spécifique
   * couleur aluminium naturel issue du procédé d’anodisation 

ECOSLIDE

PLUS D’INFORMATION ?DEMANDE DE DEVIS ?

CLIQUER ICI

SLIDE COLD coulissant sans parecloseses

La spécificité du coulissant SLIDE COLD est qu’il n’a pas de parecloses. Pendant l’assemblage du vantail, le vitrage ou le panneau est inséré dans la feuillure et maintenu sur tout le pourtour seulement par les joints.

MENUISERIES
ALUMINIUM

FENÊTRES
GAMME FROIDE

ECONOLINE

FENÊTRES
GAMME CHAUDE

IMPERIAL

SUPERIAL

GENESIS 75

STAR

PORTES D'ENTREE
GAMME FROIDE

ECONOLINE PORTE

PORTES D'ENTREE
GAMME CHAUDE

IMPERIAL 800 PORTE

SUPERIAL 800 PORTE

SUPERIAL 800
PORTE AME PLEINE

GENESIS 75 PORTE

GENESIS 75
PORTE AME PLEINE

STAR PORTE

STAR
PORTE AME PLEINE

COULISSANTS
GAMME FROIDE

ECOSLIDE

SLIDE COLD

COULISSANTS
GAMME CHAUDE

VISOGLIDE PLUS

ULTRAGLIDE

ULTRAGLIDE D'ANGLE

ULTRAGLIDE SEUIL BAS

MODERN SLIDE

CARACTERISTIQUES PRINCIPALES

Profondeur dormant 47,5- 99 mm
Deux, trois ou quatre rails  ????
Deux, trois, quatre six ou huit vantaux mobiles ou fixes/mobiles?????
Profondeur vantail 32 mm
Poids vantail max 160 kg
Intégrabilité dans les constructions vitrées ALIPLAST
Remplissage
  * vitrage simple de 6 à 9 mm, double de 12 à 24 mm, intercalaire
    aluminium, en option
     – propriétés spécifiques : isolation thermique accrue, isolation  phonique
       accrue, verre sécurit, anti-effraction, contrôle solaire
     – divers aspects décoratifs : delta, chinchilla, dépoli etc. 
Coloris
  * large choix dans la palette RAL dont en standard RAL 9016 blanc, RAL 9006
    aluminium blanc, RAL 8019 marron, obtenus par thermolaquage en mat,
    satiné, structure sable métallisée ou non métallisée
   * teintes veinage bois résultant d’un thermolaquage spécifique
   * couleur aluminium naturel issue du procédé d’anodisation de 12 à 24 mm

SLIDE COLD

PLUS D’INFORMATION ?DEMANDE DE DEVIS ?

CLIQUER ICI

COULISSANTS PROFILES CHAUDS

VISOGLIDE PLUS, ULTRAGLIDE, MODERN SLIDE

Pour les ouvertures de grand voire de très grand gabarit permettant les apports lumineux et solaires importants, les coulissants de la gamme chaude sont de loin la meilleure solution. Leurs cadres solides et robustes peuvent supporter de grands et lourds vitrages, cependant les vantaux même de taille imposante se manipulent simplement et aisément grâce aux ferrures spécialement étudiées assurant le fonctionnement fluide de l’ensemble.

Les coulissants proposés par les partenaires de CHACUN SES FENETRES sont disponibles en version coulissants classiques et levants-coulissants. Quoique plus onéreux, ces derniers sont à privilégier car l’ensemble de leur quincaillerie, leur systèmes d’étanchéité d’un côté et leur efficacité thermique de l’autre sont bien supérieurs.

Signalons qu’à l’époque actuelle, l’écart de performance énergétique et d’herméticité à l’air entre les fenêtres et portes-fenêtres à frappe et les levants-coulissants de la dernière génération est considérablement réduit, suite aux efforts constants de concepteurs pour améliorer les produits. En matière d’isolation thermique notamment, les baies vitrées tirent honorablement aujourd’hui leur épingle du jeu, et plus elles sont grandes meilleur est leur coefficient Uw. Ceci s’explique par le fait que ce coefficient est calculé en fonction des valeurs Uf pour la conductivité thermique des profilés et Ug pour la conductivité thermique des vitres. Les vitrages étant maintes fois plus isolants que les cadres aluminium, et comme ils constituent l’élément largement prédominant des coulissants, le coefficient Ug influe de manière très significative sur la valeur Uw de la menuiserie dans son ensemble Uw en l’abaissant. A titre d’exemple, une baie ULTRAGLIDE 2000 x 2200 mm avec triple vitrage 4/16/4/16/4 warm edge aura un Uw 1,37 W/m2K tandis que ce coefficient ne sera que de 1,07 W/m2K pour cette même baie aux dimensions 4000 x 2700 mm.

 

Il est à noter aussi qu’autant pour les fenêtres, afin de gagner en performance thermique, on recommande les menuiseries ‘i+ » équipées d’inserts en mousse isolante haute densité dans les profilés, autant ce n’est pas vraiment indispensable dans le cas de coulissants. Toujours à cause du ratio part aluminium et part vitre, dans ces constructions, en particulier de grandes dimensions, le coefficient Uw varie peu. Par exemple, pour une baie vitrée 2000 x 2200 mm avec triple vitrage, warm edge, sans inserts, ce coefficient est de 1,37 W/m2K et avec inserts, il est inférieur de seulement 0,05 W/m2K.

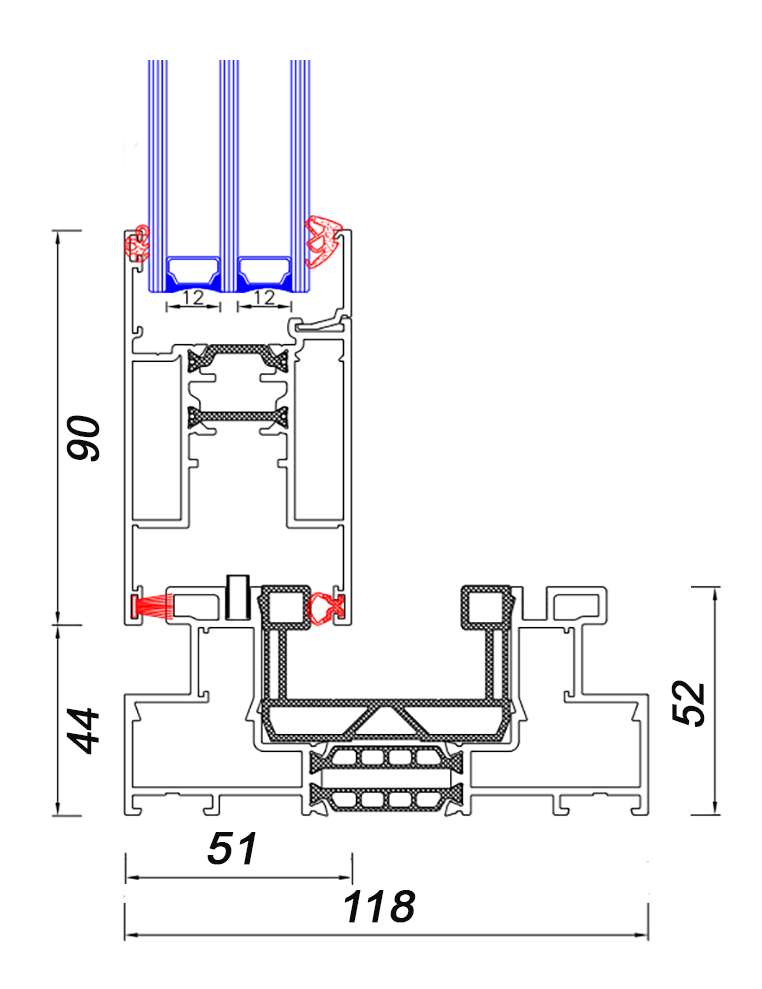
VISOGLIDE PLUS coulissant très bon rapport qualité/prix

VISOGLIDE PLUS, levant-coulissant isolé de base aux bons paramètres et performances

MENUISERIES
ALUMINIUM

FENÊTRES
GAMME FROIDE

ECONOLINE

FENÊTRES
GAMME CHAUDE

IMPERIAL

SUPERIAL

GENESIS 75

STAR

PORTES D'ENTREE
GAMME FROIDE

ECONOLINE PORTE

PORTES D'ENTREE
GAMME CHAUDE

IMPERIAL 800 PORTE

SUPERIAL 800 PORTE

SUPERIAL 800
PORTE AME PLEINE

GENESIS 75 PORTE

GENESIS 75
PORTE AME PLEINE

STAR PORTE

STAR
PORTE AME PLEINE

COULISSANTS
GAMME FROIDE

ECOSLIDE

SLIDE COLD

COULISSANTS
GAMME CHAUDE

VISOGLIDE PLUS

ULTRAGLIDE

ULTRAGLIDE D'ANGLE

ULTRAGLIDE SEUIL BAS

MODERN SLIDE

CARACTERISTIQUES PRINCIPALES

Profondeur  dormant 118, 142 ou 184 mm
Deux ou trois rails
Deux, trois, quatre ou six vantaux mobiles ou fixes/mobiles
Profondeur ouvrant 51 mm
Poids maximum vantail 200 kg
Parecloses carrées, en option arrondies
Intégrabilité dans les constructions vitrées ALIPLAST
Remplissage épaisseur jusqu’à 36 mm
  * vitrage double 4/16Ar/4 ou autre, triple 4/16/4 ou autre, intercalaire aluminium
    en option
     – propriétés spécifiques : isolation thermique accrue, isolation  phonique
       accrue, verre sécurit, anti-effraction, contrôle solaire
     – divers aspects décoratifs : delta, chinchilla, dépoli etc. 
Coloris
  * large choix dans la palette RAL dont en standard RAL 9016 blanc, RAL 9006
    aluminium blanc, RAL 8019 marron, obtenus par thermolaquage en mat,
    satiné, structure sable métallisée ou non métallisée
   * teintes veinage bois résultant d’un thermolaquage spécifique
   * couleur aluminium naturel issue du procédé d’anodisation 

VISOGLIDE PLUS

PLUS D’INFORMATION ?DEMANDE DE DEVIS ?

CLIQUER ICI

ULTRAGLIDE coulissant le plus complet

Avec les profilés larges et profonds ULTRAGLIDE, on assemble des coulissants aux gabarits significatifs, ayant très bonnes performances notamment thermiques. En plus de la version classique, les levants-coulissants ULTRAGLIDE sont disponibles en version seuil bas, de même qu’en variante angle 90°. Les trois modèles ont les mêmes caractéristiques techniques principales.

MENUISERIES
ALUMINIUM

FENÊTRES
GAMME FROIDE

ECONOLINE

FENÊTRES
GAMME CHAUDE

IMPERIAL

SUPERIAL

GENESIS 75

STAR

PORTES D'ENTREE
GAMME FROIDE

ECONOLINE PORTE

PORTES D'ENTREE
GAMME CHAUDE

IMPERIAL 800 PORTE

SUPERIAL 800 PORTE

SUPERIAL 800
PORTE AME PLEINE

GENESIS 75 PORTE

GENESIS 75
PORTE AME PLEINE

STAR PORTE

STAR
PORTE AME PLEINE

COULISSANTS
GAMME FROIDE

ECOSLIDE

SLIDE COLD

COULISSANTS
GAMME CHAUDE

VISOGLIDE PLUS

ULTRAGLIDE

ULTRAGLIDE D'ANGLE

ULTRAGLIDE SEUIL BAS

MODERN SLIDE

CARACTERISTIQUES PRINCIPALES

Profondeur  dormant 153, 239 mm
Deux ou trois rails
Deux, trois, quatre ou six vantaux mobiles ou fixes/mobiles
Profondeur ouvrant 67 mm
Poids maximum vantail 400 kg
Parecloses carrées, en option arrondies
Intégrabilité dans les constructions vitrées ALIPLAST
Remplissage épaisseur jusqu’à 52 mm
  * vitrage double 4/16Ar/4 ou autre, triple 4/16/4 ou autre, intercalaire aluminium
    en option
     – propriétés spécifiques : isolation thermique accrue, isolation  phonique
       accrue, verre sécurit, anti-effraction, contrôle solaire
     – divers aspects décoratifs : delta, chinchilla, dépoli etc. 
Coloris
  * large choix dans la palette RAL dont en standard RAL 9016 blanc, RAL 9006
    aluminium blanc, RAL 8019 marron, obtenus par thermolaquage en mat,
    satiné, structure sable métallisée ou non métallisée
   * teintes veinage bois résultant d’un thermolaquage spécifique
   * couleur aluminium naturel issue du procédé d’anodisation 

ULTRAGLIDE

PLUS D’INFORMATION ?DEMANDE DE DEVIS ?

CLIQUER ICI

ULTRAGLIDE SEUIL BAS

Certes, il est toujours possible d’encastrer une porte coulissante dans le sol, mais l’encastrement ne peut être que partiel et la construction en creux de la traverse basse ou sont installées les rails de roulement peut rendre parfois difficile le passage notamment de fauteuils roulants. Ayant à l’esprit le confort de déplacement des personnes à mobilité réduite, mais aussi de manière générale l’aisance de sortie et d’entrée par les portes coulissantes, ALIPLAST a conçu la variante ULTRAGLIDE SEUIL BAS.

Ce seuil extrêmement plat s’encastre de deux côtés, à l’extérieur sa languette très fine adhère au sol, à l’intérieur (d’habitude plus surélevé) son bord supérieur ne dépasse que de deux-trois millimètres ce qui est pratiquement indétectable par les roues. ULTRAGLIDE SEUIL BAS est très apprécié par les utilisateurs et largement privilégié par rapport à la version de base.

 

MENUISERIES
ALUMINIUM

FENÊTRES
GAMME FROIDE

ECONOLINE

FENÊTRES
GAMME CHAUDE

IMPERIAL

SUPERIAL

GENESIS 75

STAR

PORTES D'ENTREE
GAMME FROIDE

ECONOLINE PORTE

PORTES D'ENTREE
GAMME CHAUDE

IMPERIAL 800 PORTE

SUPERIAL 800 PORTE

SUPERIAL 800
PORTE AME PLEINE

GENESIS 75 PORTE

GENESIS 75
PORTE AME PLEINE

STAR PORTE

STAR
PORTE AME PLEINE

COULISSANTS
GAMME FROIDE

ECOSLIDE

SLIDE COLD

COULISSANTS
GAMME CHAUDE

VISOGLIDE PLUS

ULTRAGLIDE

ULTRAGLIDE D'ANGLE

ULTRAGLIDE SEUIL BAS

MODERN SLIDE

CARACTERISTIQUES PRINCIPALES

Profondeur  dormant 153, 239 mm
Deux ou trois rails
Deux, trois, quatre ou six vantaux mobiles ou fixes/mobiles
Profondeur ouvrant 67 mm
Poids maximum vantail 400 kg
Parecloses carrées, en option arrondies
Intégrabilité dans les constructions vitrées ALIPLAST
Remplissage épaisseur jusqu’à 52 mm
  * vitrage double 4/16Ar/4 ou autre, triple 4/16/4 ou autre, intercalaire aluminium
    en option
     – propriétés spécifiques : isolation thermique accrue, isolation  phonique
       accrue, verre sécurit, anti-effraction, contrôle solaire
     – divers aspects décoratifs : delta, chinchilla, dépoli etc. 
Coloris
  * large choix dans la palette RAL dont en standard RAL 9016 blanc, RAL 9006
    aluminium blanc, RAL 8019 marron, obtenus par thermolaquage en mat,
    satiné, structure sable métallisée ou non métallisée
   * teintes veinage bois résultant d’un thermolaquage spécifique
   * couleur aluminium naturel issue du procédé d’anodisation 

ULTRAGLIDE
SEUIL BAS

PLUS D’INFORMATION ?DEMANDE DE DEVIS ?

CLIQUER ICI

ULTRAGLIDE D'ANGLE 90°

Lorsque l’on dispose d’une terrasse en forme de « L », ULTRAGLIDE ANGLE 90° peut être une option très intéressante. Les vantaux dans cette configuration sont placés perpendiculairement, cependant le poteau d’angle n’est pas fixe mais mobile, car il est arrimé à l’un des ouvrants. Ainsi en position ouverte il se crée une grande largeur de passage sans encombre du coin de la pièce vers l’extérieur.

 

MENUISERIES
ALUMINIUM

FENÊTRES
GAMME FROIDE

ECONOLINE

FENÊTRES
GAMME CHAUDE

IMPERIAL

SUPERIAL

GENESIS 75

STAR

PORTES D'ENTREE
GAMME FROIDE

ECONOLINE PORTE

PORTES D'ENTREE
GAMME CHAUDE

IMPERIAL 800 PORTE

SUPERIAL 800 PORTE

SUPERIAL 800
PORTE AME PLEINE

GENESIS 75 PORTE

GENESIS 75
PORTE AME PLEINE

STAR PORTE

STAR
PORTE AME PLEINE

COULISSANTS
GAMME FROIDE

ECOSLIDE

SLIDE COLD

COULISSANTS
GAMME CHAUDE

VISOGLIDE PLUS

ULTRAGLIDE

ULTRAGLIDE D'ANGLE

ULTRAGLIDE SEUIL BAS

MODERN SLIDE

CARACTERISTIQUES PRINCIPALES

Profondeur  dormant 153, 239 mm
Deux ou trois rails
Deux, trois, quatre ou six vantaux mobiles ou fixes/mobiles
Profondeur ouvrant 67 mm
Poids maximum vantail 400 kg
Parecloses carrées, en option arrondies
Intégrabilité dans les constructions vitrées ALIPLAST
Remplissage épaisseur jusqu’à 52 mm
  * vitrage double 4/16Ar/4 ou autre, triple 4/16/4 ou autre, intercalaire aluminium
    en option
     – propriétés spécifiques : isolation thermique accrue, isolation  phonique
       accrue, verre sécurit, anti-effraction, contrôle solaire
     – divers aspects décoratifs : delta, chinchilla, dépoli etc. 
Coloris
  * large choix dans la palette RAL dont en standard RAL 9016 blanc, RAL 9006
    aluminium blanc, RAL 8019 marron, obtenus par thermolaquage en mat,
    satiné, structure sable métallisée ou non métallisée
   * teintes veinage bois résultant d’un thermolaquage spécifique
   * couleur aluminium naturel issue du procédé d’anodisation 

ULTRAGLIDE
D'ANGLE 90°

PLUS D’INFORMATION ?DEMANDE DE DEVIS ?

CLIQUER ICI

MODERN SLIDE coulissant à galandage

Dans les baies coulissantes MODERN SLIDE, les vantaux glissent entièrement sur la droite et/ou sur la gauche pour aller se dissimuler dans la cloison conçue à cet effet, libérant ainsi la plus grande largeur de passage possible.

MENUISERIES
ALUMINIUM

FENÊTRES
GAMME FROIDE

ECONOLINE

FENÊTRES
GAMME CHAUDE

IMPERIAL

SUPERIAL

GENESIS 75

STAR

PORTES D'ENTREE
GAMME FROIDE

ECONOLINE PORTE

PORTES D'ENTREE
GAMME CHAUDE

IMPERIAL 800 PORTE

SUPERIAL 800 PORTE

SUPERIAL 800
PORTE AME PLEINE

GENESIS 75 PORTE

GENESIS 75
PORTE AME PLEINE

STAR PORTE

STAR
PORTE AME PLEINE

COULISSANTS
GAMME FROIDE

ECOSLIDE

SLIDE COLD

COULISSANTS
GAMME CHAUDE

VISOGLIDE PLUS

ULTRAGLIDE

ULTRAGLIDE D'ANGLE

ULTRAGLIDE SEUIL BAS

MODERN SLIDE

CARACTERISTIQUES PRINCIPALES

Profondeur  dormant 73,8 – 195,50 mm
Deux ou trois rails
Deux, trois, quatre ou six vantaux mobiles ou fixes/mobiles ???
Profondeur ouvrant 44 mm, montants et traverses à largeur réduite
Poids maximum vantail 250 kg
Parecloses carrées, en option arrondies
Intégrabilité dans les constructions vitrées ALIPLAST
Remplissage épaisseur jusqu’à 32 mm
  * vitrage double 4/16Ar/4 ou autre, triple 4/16/4 ou autre, intercalaire aluminium
    en option
     – propriétés spécifiques : isolation thermique accrue, isolation  phonique
       accrue, verre sécurit, anti-effraction, contrôle solaire
     – divers aspects décoratifs : delta, chinchilla, dépoli etc. 
Coloris
  * large choix dans la palette RAL dont en standard RAL 9016 blanc, RAL 9006
    aluminium blanc, RAL 8019 marron, obtenus par thermolaquage en mat,
    satiné, structure sable métallisée ou non métallisée
   * teintes veinage bois résultant d’un thermolaquage spécifique
   * couleur aluminium naturel issue du procédé d’anodisation 

MODERN SLIDE

PLUS D’INFORMATION ?DEMANDE DE DEVIS ?

CLIQUER ICI